Sierenzerstrasse 22, Basel 4055
This is one of our top picks for ROI.
Overview
Price: 850,000CHF
Location: Basel, 4055
Plot Size: N/A
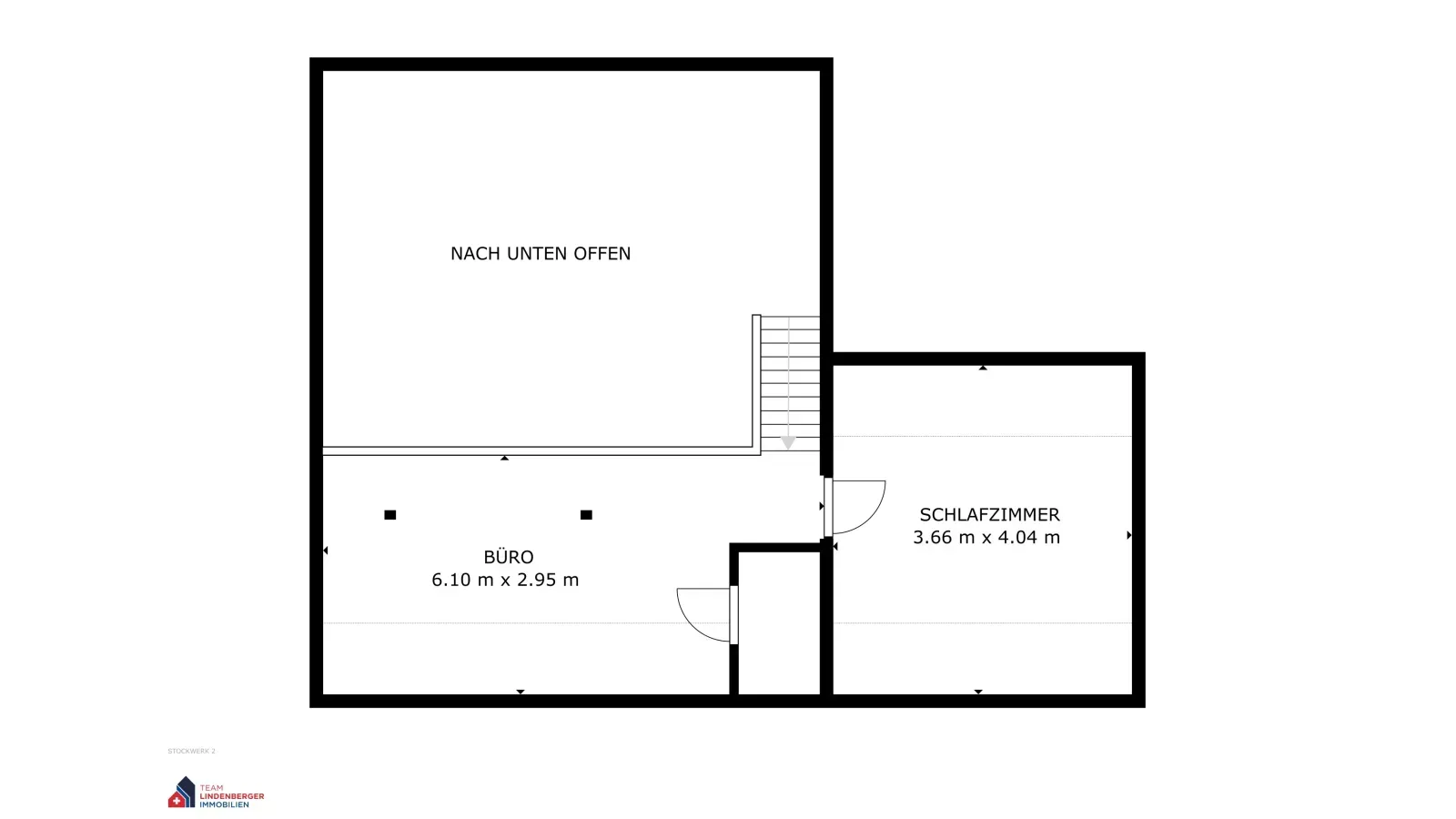
Living Space: 123m2
Type: Duplex Apartment
Garden: N/A
Heating: Gas/Underfloor
Body Corporate Fees p/m: 550CHF
Agent Contact: Team Lindenberger Immobilien GmbH
Check out the 3D tour at the link below:
Bathroom
Investment: 30-50,000CHF
Complete renovation of existing bathroom to modernise the feel and bring in more natural light. Removal of solid dividing walls separating the powder area and the wc/shower/bath will make the bathroom feel huge!
Kitchen
Investment: 50-80,000CHF
This area can of the apartment can be opened completely up to give an open plan. Removal of the wall between the existing dining room and kitchen would make a huge difference to the feel of the space.
Flooring
Investment: 15-30,000CHF
This is an easy one and I am sure everyone would agree... remove those outdated tiles and invest in some beautiful oak parquet and new skirting boards that would give this outdated apartment a warm and cosy feel.
Painting & Plastering
Investment: 15-25,000CHF
A freshen up of the walls and ceilings, Painting the wooden lining boards on the ceiling in the entry landing would give away the outdated clear varnished look.
Roof
Investment: 80-120,000CHF
A newly insulated roof is not 100% necessary (for winter) but might be worth consideration for the warmth in summer.
Electrics
Investment: 10-20,000CHF
Bring the electrics up to todays standard and be secure for the next 20 years!
Plumbing
Investment: Allowed for
General plumbing works to be allowed for in bathroom and kitchen works
Terrace
Investment: 5-10,000CHF
Modernising the terrace with a new fixed roof and modern floor and we're sure you will be spending 99% of your free time out there!
Windows
Investment: 15-35,000CHF
New velux windows with up to date accessories like solar blinds, remote control, rain sensors, bluetooth would be a huge investment for this apartment.
Estimated cost bracket of: 220-370,000CHF
It's an investment.
Over the past decade, property prices in the 4055 Basel area have experienced significant growth.
Specifically, over a 10-year period, apartment prices have increased by 40.7%, and over 20 years, the increase has been 103.9%.
Currently, the average price per square meter for apartments in 4055 Basel is 10,841CHF.
For instance, Wüest Partner forecasts annual price increases of 3.4% for privately owned apartments and 3.0% for single-family houses in 2025.Similarly, other analyses suggest that apartments may appreciate by around 3.79% per year, while houses could see annual increases of approximately 3.10%.
These estimates suggest a cumulative increase of approximately 18.3% over five years.However, it's important to note that these projections are based on current trends and are subject to change due to various factors, including economic conditions, interest rates, and housing demand.





