Seewenstrasse 28 - Hochwald 4146
Overview
Price: 1,195,000CHF
Location: Hochwald, Solothurn (15 mins from Basel)
Plot Size: 1028m2
Living Space: 144m2
Type: Detached family home
Garden: Spacious and private
Heating: Oil
Agent Contact: Team Lindenberger Immobilien GmbH
Check out the 3D tour at the link below:
Bathrooms
Investment: 70-90,000CHF
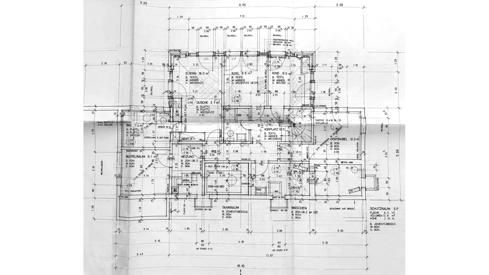
We would totally renovate the larger bathroom and the smaller shower room on the ground floor. The smaller toilet on the street level floor would open up into a larger full bathroom. This house would then have 3 showers and 2 full sized bathrooms!
Kitchen
Investment: 80-120,000CHF
The layout of this property as its stands is great, BUT it could be better. With a massive open plan area on the west facing side of the street level floor, we would move the kitchen to that side of the house. Then opening up the small toilet into the existing area of the kitchen.
Flooring
Investment: 30-50,000CHF
This is an easy one and I am sure everyone would agree... remove those outdated tiles and invest in some beautiful oak parquet that would excentuate the surrounds of the property.
Painting & Plastering
Investment: 25-35,000CHF
Do you keep the wooden panels on the walls? Or do you plasterboard over the top and finsh the walls smooth? Thats the big question. It all comes down to taste, but either option works and the result will be breathtaking no matter the choice one makes. (Our painter is the best in the business)
Roof
Investment: 50-70,000CHF
Updating the insulation in the roof will only raise the value of the property AND you'll get a nice incentive from the state for helping out the environment! There is also the option to add skylights and planning permission pending for an added cost ontop of the above mentioned another level up to the sky!
Electrics
Investment: 15-20,000CHF
Bring the electrics up to todays standard and be secure for the next 20 years!
Plumbing
Investment: 15-25,000CHF
Servicing the heating system, general repairs around the property. Having a plumber bring everything up to standard will help you sleep at night.
Facade
Investment: 20-40,000CHF
A wise man once said, "the facade is the visitor card to your house".
Windows and Doors
Investment: 40-55,000CHF
With new windows and doors you will be sure to have warm winters and cool summers. The existing are not in any way shape or form in bad shape. Its a preference thing!
Estimated cost bracket of: 350-510,000CHF
It's an investment.
Over the past decade, house prices in Hochwald have experienced notable growth. Specifically, there has been a 24.7% increase over the last 10 years.
This trend aligns with the broader real estate market in the Canton of Solothurn, which saw a 30.6% rise in house prices during the same period.
More recently, since the beginning of 2020, house prices in Hochwald have increased by 14.5%.
These figures indicate a consistent upward trajectory in property values in Hochwald over the past decade.
Forecasts suggest annual price increases of approximately 2.5% to 3.4% for residential properties in 2025.
Applying these projections to Hochwald's current average house price:
- 2026: CHF 1,247,500
- 2027: CHF 1,285,925
- 2028: CHF 1,324,503
- 2029: CHF 1,363,238
- 2030: CHF 1,402,135
These estimates indicate a cumulative increase of approximately 18.3% over five years.













